S’ House là dự án thiết kế nhà phố Khang Linh Vũng Tàu với quy mô 4 tầng, Kiến trúc Không Gian Xanh Vũng Tàu đã hoàn thành phương án thiết kế trong đầu năm 2020, công trình thiết kế lệch tầng tối ưu không gian sử dụng với phong cách hiện đại, cá tính…
Thông tin dự án
Chủ đầu tư: Mr. Sơn
Địa chỉ : Khu nhà ở Khang Linh, TP. Vũng Tàu
Dự án: Thiết kế nhà phố
Thiết kế và thi công trọn gói: Kiến trúc Không Gian Xanh Vũng Tàu
Năm thiết kế: 2020
Phong cách thiết kế: hiện đại, tiện nghi.

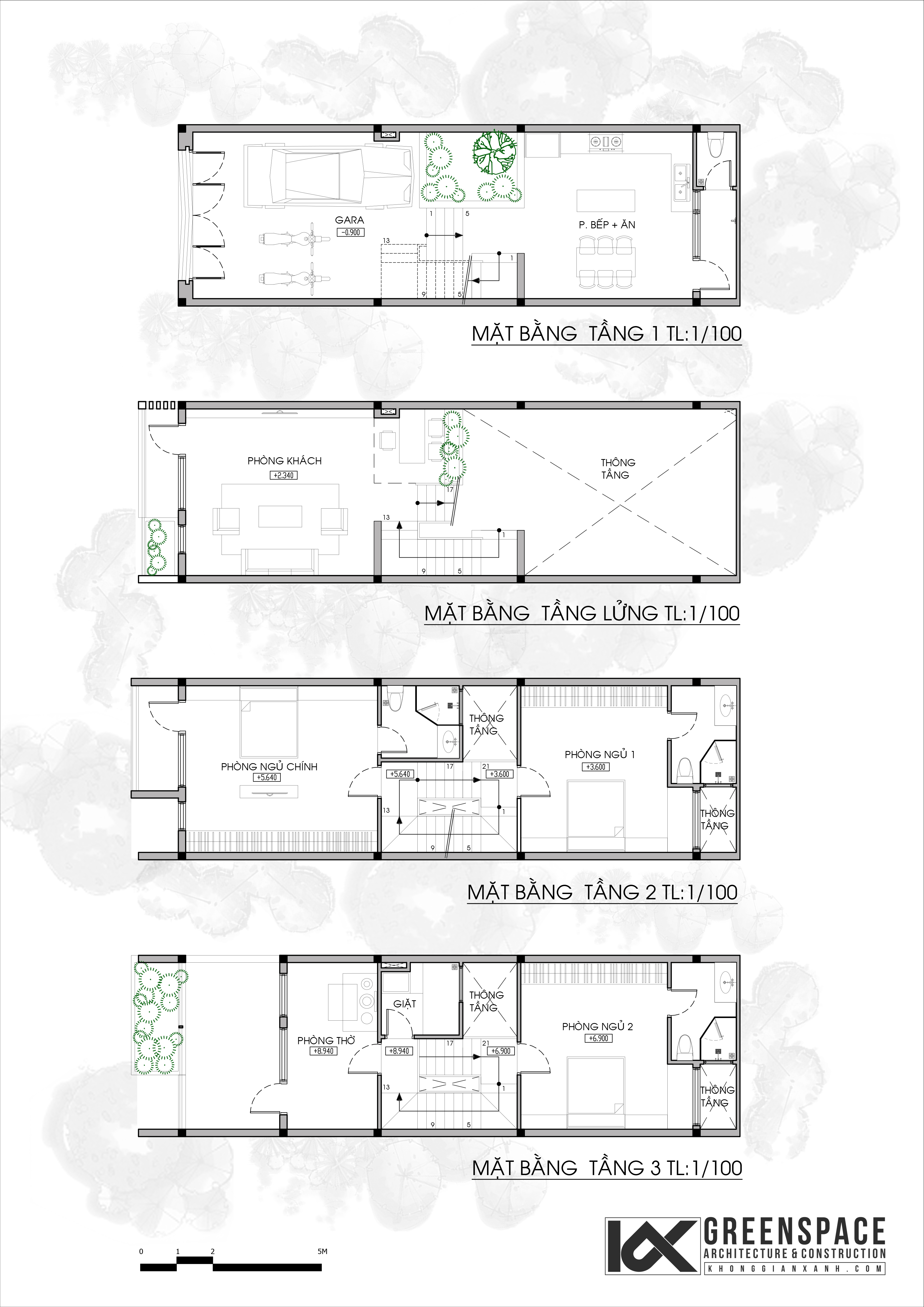
Công trình với diện tích xây dựng 77m2, mặt tiền rộng 5m công năng bố trí theo phương án lệch tầng để tối ưu hóa các không gian sử dụng.
Điều quan trọng trong việc bố trí công năng nhà ở đó là sự tiên nghi và tối ưu, tuy nhiên với nhịp sống hiện đại ngày nay, các mô hình nhà phố hiện đại một mặt tiền diện tích hạn chế thì việc thông thoáng trong không gian mới là điều được chú trọng hàng đầu.
Các khoảng thông tầng được bố trí xen kẽ giữa các không gian giúp cung cấp tối đa ánh sáng tự nhiên và lưu thông gió.

Hình khối công trình được thiết kế theo phong cách hiện đại, đơn giản với tone màu trắng – xám cá tính, sự kết hợp giữa ô cửa lớn với mảng tường ốp gạch thẻ, điểm thêm các chi tiết mái lam sắt trang trí, ốp gỗ nhựa cho trần khiến ngôi nhà toát lên sự hài hòa dễ chịu.
Phương án thiết kế nhà phố Khang Linh Vũng tàu 4 tầng đã được Chủ đầu tư ký duyệt, và sẽ được tiến hành khởi công xây dựng trong năm 2020.
Các hình ảnh thiết kế của công trình:

Click tại đây để xem thêm các thiết kế nhà phố của Kiến trúc Không Gian Xanh.
Xem thêm thiết kế nội thất của các công trình nhà phố tại chuyên mục Nội thất